Rif: IMMO-123947695
					
              
                           
              
              MILANO
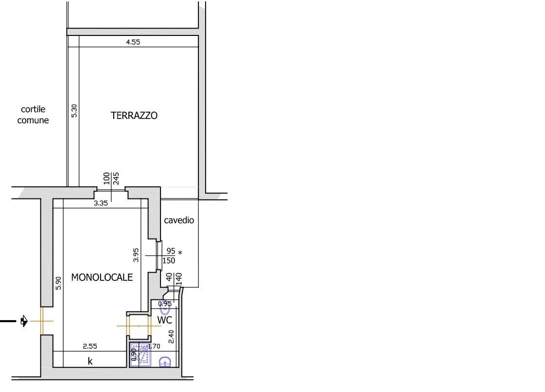
MILANO - zona Porta Venezia
                      	
              
            	
                        
              In Via Panfilo Castaldi a pochi passi da Corso Buenos Aires e dalla fermata MM1 Porta Venezia, Immobiliare Della Scala propone in vendita un interessante monolocale al quarto piano, all'interno di uno stabile signorile servito da ascensore.
La soluzione è molto luminosa ed è composta da:
ingresso sulla zona giorno/notte con angolo cottura, bagno finestrato con box doccia.
Completa la proprietà uno splendido terrazzo in fase di totale rinnovamento( l'acquirente potrà scegliere il colore e la tipologia del pavimento flottante posato )
L'immobile si presenta in ottime condizioni, ideale sia ad uso investimento, sia come punto d'appoggio nel cuore di Milano.
Libero al rogito
Foto in fase di realizzazione.
						  La soluzione è molto luminosa ed è composta da:
ingresso sulla zona giorno/notte con angolo cottura, bagno finestrato con box doccia.
Completa la proprietà uno splendido terrazzo in fase di totale rinnovamento( l'acquirente potrà scegliere il colore e la tipologia del pavimento flottante posato )
L'immobile si presenta in ottime condizioni, ideale sia ad uso investimento, sia come punto d'appoggio nel cuore di Milano.
Libero al rogito
Foto in fase di realizzazione.
Consistenze
| Descrizione | Superficie | Sup. comm. | 
|---|---|---|
| Principali | ||
| Immobile - 4° piano | 40 Mq | 40 Mqc | 
| Totale | 40 Mqc | |




 
										 
                             
                             
                            




